در دنیای شلوغ و پر هیاهوی امروزی، بسیاری از افراد به دنبال داشتن یک ویلای کوچک و دنج هستند تا اوقات فراغت خود را بهتر سپری کنند. برای ساخت یک ویلا فوقالعاده نیاز است که یک نقشه خوب در دست داشته باشید. به عبارتی میتوان گفت بدون نقشه ویلا کوچک نمیتوان انتظار داشت که ویلایی ساخته شود. اما آیا تاکنون از خود پرسیدهاید که برای طراحی نقشه ویلا کوچک به چه فاکتورهایی باید توجه کرد؟
در این مطلب از مجله کات کن، تصمیم داریم در رابطه با نقشه ویلا صحبت کنیم و اطلاعات لازم را در اختیار شما قرار دهیم. بنابراین اگر دوست دارید در این باره بیشتر بدانید، مطالعه این مطلب مناسب شما خواهد بود.
مهمترین مواردی که قبل از طراحی نقشه ویلا باید به آن توجه شود
قبل از طراحی نقشه ویلا ضروری است به یک سری فاکتورها توجه داشته باشید. بیتوجهای به این فاکتورها میتواند نتیجه نهایی کار را خراب کند. پس اگر میخواهید ویلای دلخواهتان را با نمای شیشه ای و یا هر متریال دیگر به بهترین نحو ممکن ساخته شود، قبل از شروع طراحی نقشه عوامل زیر را در نظر داشته باشید:
انتخاب موقعیت مکانی مناسب
انتخاب موقعیت مکانی مناسب برای ساخت ویلا، نقشی اساسی در ایجاد یک محیط دلنشین و آرامشبخش ایفا میکند و از مهمترین گامهای اولیه در طراحی و ساخت یک ویلای خوب محسوب میشود.
در هنگام انتخاب موقعیت مکانی مناسب، باید به عوامل مختلفی توجه کرد. بودجه شما اولین فاکتور مهمی است که نباید از آن غافل شوید. قیمت زمین در مناطق گوناگون متفاوت است. شما باید زمینی را انتخاب کنید که با بودجه شما در تطابق باشد. دسترسی به ویلا نیز از اهمیت بسیاری برخوردار است. باید به این موضوع توجه کنید که آیا به راحتی میتوان از طریق جاده یا مسیرهای دیگر به ویلا دسترسی پیدا کرد یا نه؟ آیا فضای کافی برای پارک خودرو در محوطه ویلا وجود دارد یا خیر؟

علاوه بر این موارد، چشمانداز منطقه نیز میتواند نقش مهمی در انتخاب شما داشته باشد. اگر چشمانداز برای شما از اهمیت زیادی برخوردار است، میتوانید زمینی را در کنار دریا، کوه یا جنگل انتخاب کنید تا از طبیعت زیبا لذت ببرید. همچنین، باید به نورگیری ویلا توجه کنید و زمینی را انتخاب کنید که از نور طبیعی خورشید در طول روز به بهترین نحو استفاده کند. آب و هوای منطقه، قوانین و مقررات ساخت و ساز و … از دیگر فاکتورهایی است که نباید از آن غافل شوید.
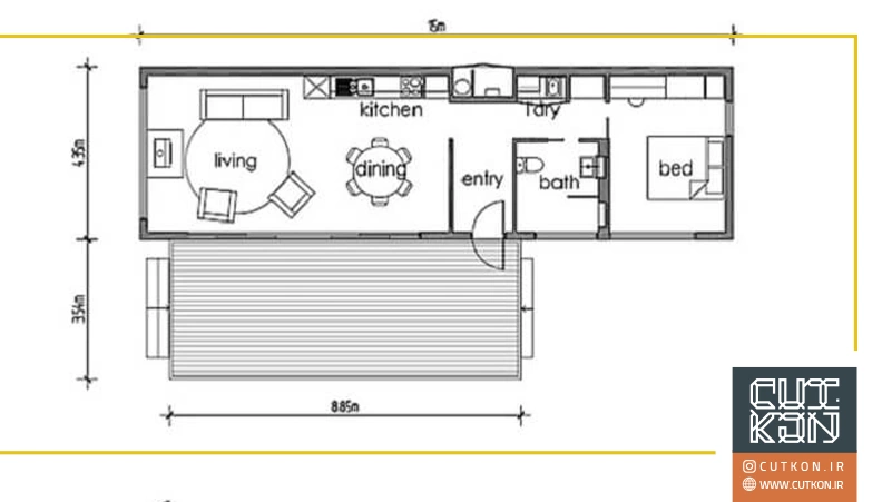
اندازه پلان ها
توجه به اندازه پلانها در طراحی نقشه ویلا از اهمیت بالایی برخوردار است و میتواند تاثیر مستقیمی بر کارایی، زیبایی و آسایش ساکنین ویلا داشته باشد. اولین و مهمترین نکته، تناسب ابعاد فضاهای مختلف ویلا با یکدیگر و همچنین با نیازهای ساکنین است. برای مثال، اتاق خوابها باید به اندازهای بزرگ باشند که فضای کافی برای تخت، کمد و سایر ملزومات را داشته باشند. همچنین، فضای نشیمن و پذیرایی باید به گونهای باشد که بتوان مبلمان را به راحتی چیدمان کرد و فضایی برای رفت و آمد وجود داشته باشد. علاوه بر این اندازه پلانها میتواند بر کارایی و عملکرد فضاهای مختلف ویلا و همچنین زیبایی بیشتر ساختمان و نمای ویلا نیز تاثیر بگذارد. برای مثال، آشپزخانه باید به اندازهای بزرگ باشد که فضای کافی برای پخت و پز، ذخیرهسازی مواد غذایی و رفت و آمد وجود داشته باشد. همچنین، حمام و سرویس بهداشتی باید به گونهای طراحی شوند که فضای کافی برای استفاده راحت افراد را داشته باشند.

میزان هزینه و بودجه
از دیگر فاکتورهایی که زمان طراحی نقشه ویلا باید به آن توجه داشته باشید، میزان بودجهای است که میخواهید به این امر اختصاص دهید. قطعا هر چه بودجه بیشتری در اختیار داشته باشید، میتوانید طرحهای فوقالعادهتری را اجرا کنید. البته این نکته را نیز در نظر داشته باشید که با کمک یک تیم حرفهای امکان اجرایی بهترین طرحها و نقشههای ویلا با هزینهای کم وجود دارد.
موقعیت قرارگیری تمامی قسمت ها در نقشه ویلا
انتخاب هوشمندانه موقعیت فضاها در نقشه ویلا، نقشی اساسی در خلق فضایی دلنشین و کاربردی ایفا میکند. هنگام جانمایی فضاها، عواملی مانند جهتگیری ویلا، دسترسی به چشمانداز، حفظ حریم خصوصی، کارایی فضا و ایجاد فضاهای دنج را باید مدنظر قرار داد. به عنوان مثال، با قرارگیری پذیرایی در جهتی که از نور خورشید در طول روز بهرهمند میشود، فضایی روشن و دلنشین خلق خواهید کرد. همچنین، انتخاب موقعیتی مناسب برای اتاق خوابها که از تابش مستقیم نور خورشید در صبح جلوگیری میکند، خوابی آرام و باکیفیت را برای ساکنان به ارمغان میآورد.

اصول کلی نقشهکشی ویلا
نقشهکشی ویلا، به عنوان نقشهای راهنما برای ساخت و ساز، نقشی اساسی در خلق ویلایی ایدهآل ایفا میکند. این امر مستلزم رعایت اصولی کلی است که در ادامه به برخی از آنها اشاره میشود:
- توجه به ضوابط و مقررات: در ابتدای امر، باید ضوابط و مقررات ملی و محلی مربوط به ابعاد و مساحت ویلا، عقبنشینیها، تراکم ساختمانی و الزامات فنی و ایمنی را به دقت بررسی و در طراحی لحاظ کرد. این امر از بروز هرگونه مشکل در مراحل بعدی ساخت و ساز جلوگیری خواهد کرد.
- مساحت و تعداد طبقات: تعیین مساحت و تعداد طبقات ویلا با توجه به نیازها و سلیقه ساکنان، بودجه موجود و متراژ زمین از مهمترین اقدامات در ابتدای کار است. انتخاب مساحت و تعداد طبقات مناسب تاثیر بسزایی بر کارایی، هزینه ساخت و همچنین زیبایی ظاهری ویلا خواهد داشت.
- جانمایی فضاها: انتخاب موقعیت مناسب برای هر یک از فضاهای ویلا مانند پذیرایی، آشپزخانه، اتاق خواب، سرویس بهداشتی، حیاط و ایوان نقشی اساسی در کارایی، زیبایی و آسایش ساکنان دارد. در این مسیر باید به عواملی مانند جهتگیری ویلا، دسترسی به چشمانداز، حفظ حریم خصوصی، ایجاد مسیرهای حرکتی منطقی و همچنین استفاده از نور طبیعی توجه کرد.
- طراحی جزییات ویلا: طراحی جزئیات ویلا یکی از مهمترین مراحل طراحی نقشه ویلا کوچک محسوب میشود. در این مرحله نما ، محوطهسازی، سیستمهای تاسیساتی و برقی و سایر المانهای مرتبط با ساخت و ساز مشخص میشود.

معیار های موثر در پلان نقشه ویلا
طراحی پلان ویلا، فرایندی پیچیده است که نیازمند توجه به معیارهای مختلفی است. در نظر گرفتن این معیارها در کنار یکدیگر، به خلق فضایی ایدهآل، زیبا و کاربردی برای زندگی در ویلا منجر خواهد شد. از مهمترین معیارهایی که در پلان نقشه تاثیر میگذارند، میتوانیم به موارد زیر اشاره کنیم:
- کارایی: فضای داخلی ویلا باید به گونهای طراحی شود که از نظر حرکت و دسترسی بین مختلف قسمتها منطقی و کارآمد باشد. این موضوع به خصوص در مورد آشپزخانه، غذاخوری و پذیرایی از اهمیت بسیاری برخوردار است و باید مسیر حرکت بین این قسمتها راحت و کوتاه باشد.
- زیبایی: در طراحی نقشه ویلا باید به جنبههای زیباییشناسی و خلق فضایی دلنشین نیز توجه کرد. استفاده از نور طبیعی، ایجاد تقارن و تعادل در پلان، و همچنین بهرهمندی از عناصر طبیعی مانند گیاهان و چشمانداز در طراحی ویلا میتواند به زیبایی و لطافت فضا بیافزاید.
- آسایش: ایجاد فضایی آرام و مطلوب برای زندگی از اهداف اصلی طراحی ویلا است. در این راستا، باید به عواملی مانند عایق صوتی و حرارتی مناسب، تهویه مطبوع کارآمد، و همچنین وجود فضای کافی برای استراحت و خلوت در طراحی ویلا توجه کرد.
- نیازها و سلیقه ساکنان: طراحی پلان ویلا همچنین باید بر اساس نیازها و سلیقه افرادی که در آن زندگی میکنند انجام شود. تعداد افراد ساکن، سن و سال آنها، سبک زندگی و علاقهمندیهای آنها از جمله عواملی هستند که باید در طراحی پلان ویلا مورد توجه قرار گیرند.
کات کن، بهترین مجری طراحی انواع نما و نقشه برای ویلا
در دست داشتن یک نقشه خوب برای ساخت ویلایی زیبا الزامی است. تمامی ساختمانهای فوقالعادهای که امروزه مشاهده میکنید، همگی از یک نقشه خوب شروع شدهاند. پس میتوان گفت برای ساخت ویلا ابتدا باید یک مجموعه معتبر را برای طراحی نقشه انتخاب کرد.
اگر به دنبال یک تیم خبره و حرفهای از متخصصان جوان و کاربلد هستید که به شما کمک کنند تا بهترین نقشهها را برای ویلا کوچک خود طراحی کنید، ما به شما کات کن را معرفی میکنیم. در کات کن امکان طراحی انواع نقشه و نمای ساختمانی با بالاترین کیفیت و کمترین هزینه ممکن فراهم است.